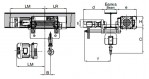
Таль с монорельсовой тележкой XM 308 / 312 / 316 / 525
S2 Тип 83
S2 - XM 308 / 312 / 316 / 525
|
Таль Hoist |
Грузоподъ емность Capacity |
Высота подъема Hook travel |
Размеры Dimensions |
Цилиндрические двигатели Cylindrical motors |
Конические двигатели Conical motors |
Масса Weight |
|||||||||||||
|
XM |
t-max |
m |
C mm |
H mm |
h mm |
d mm |
e mm |
f mm |
LR mm |
B mm |
Скорость m/min |
LM mm |
Скорость m/min |
LM mm |
Скорость m/min |
LM mm |
Скорость m/min |
LM mm |
Kg |
|
|
|
10 |
|
|
|
|
|
|
400 |
91 |
N |
730 |
V |
730 |
N |
530 |
V |
580 |
390 |
|
308 |
1,6 |
14 |
700 |
240 |
140 |
430 |
470 |
410 |
460 |
154 |
|
790 |
|
790 |
|
590 |
|
640 |
490 |
|
20 |
550 |
244 |
|
880 |
|
880 |
|
680 |
|
730 |
525 |
||||||||
|
|
|
26 |
|
|
|
|
|
|
645 |
337 |
N A |
975 |
V A |
975 |
N A |
775 |
V A |
825 |
560 |
|
|
|
10 |
|
|
|
|
|
|
470 |
90 |
N |
750 |
V |
830 |
N |
600 |
V |
640 |
530 |
|
312 |
2,5 |
14 |
680 |
240 |
140 |
430 |
470 |
410 |
535 |
155 |
|
815 |
|
895 |
|
665 |
|
705 |
560 |
|
20 |
640 |
258 |
|
920 |
|
1000 |
|
770 |
|
810 |
595 |
||||||||
|
|
|
26 |
|
|
|
|
|
|
740 |
358 |
N A |
1020 |
V A |
1100 |
N A |
870 |
V A |
910 |
630 |
|
|
|
10 |
|
|
|
|
|
|
470 |
90 |
N |
770 |
V |
830 |
N |
640 |
|
|
550 |
|
316 |
3,2 |
14 |
680 |
240 |
140 |
430 |
470 |
410 |
535 |
155 |
|
835 |
|
895 |
|
705 |
/ |
/ |
595 |
|
20 |
640 |
258 |
|
940 |
|
1000 |
|
810 |
630 |
||||||||||
|
|
|
26 |
|
|
|
|
|
|
740 |
358 |
N A |
1040 |
V A |
1100 |
N A |
910 |
|
|
660 |
|
|
|
10 |
|
|
|
|
|
|
500 |
90 |
N |
840 |
V |
900 |
N |
650 |
V |
740 |
680 |
|
525 |
5 |
14 |
730 |
305 |
140 |
485 |
550 |
440 |
565 |
157 |
|
905 |
|
965 |
|
715 |
|
805 |
695 |
|
20 |
670 |
260 |
|
1010 |
|
1070 |
|
820 |
|
910 |
740 |
||||||||
|
|
|
26 |
|
|
|
|
|
|
770 |
360 |
N A |
1110 |
V A |
1170 |
N A |
920 |
V A |
1010 |
830 |
N – V – NA – VA = скорость подъема (см. с. 18–19)
Примечание:
1) В случае более широкой балки размер С (мин. размер крюка к ферме) увеличивается на 12 мм на каждые 10 мм ширины, превышающей указанную.
2) Размер f применим для балки шириной 300 мм; в случае балки другого размера его уменьшают или увеличивают на половину разницы в размере.
